Продается офисное помещение!
| Населенный пункт | Волгоград |
|---|---|
| Район города | Советский |
| Улица | улица им Сухова |
| Номер дома | 19а |
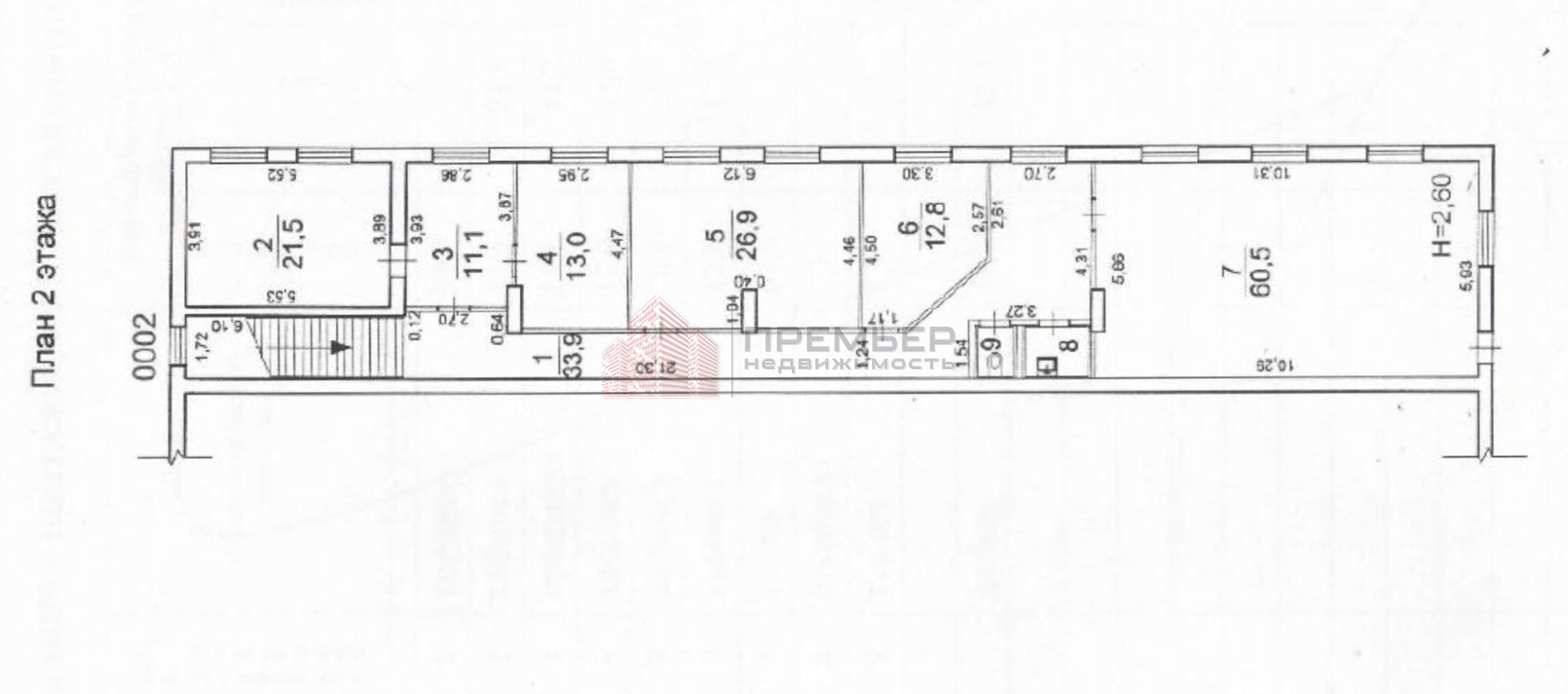
Описание
Продается офисное помещение. Стандартный офисный ремонт, установлены сплитсистемы. Мебель по договоренности.
Офис на шесть кабинетов, в одном требуется капитальный ремонт. Есть отдельное помещение кухни. Здание отдельностоящее, на первом этаже расположены гаражи.
Общая площадь-196, 2 кв.м
Здание кирпичное, отличная локация. Есть возможность припарковать авто. Хорошие подъездные пути, транспортная развязка.
Чистая продажа. В собственности. Документы в порядке.
Соседние улицы: Казахская, пр-кт Университетский, Новосибирская
| Сведения о недвижимости | |
|---|---|
| ID | 63687 |
| НДС | НДС не включен |
| Возможное назначение | Коммерция |
| Тип парковки | На улице |
| Вход cian (avito) | Общий с улицы |
| Тип сделки авито коммерческая | Продажа |
| Ремонт | Частичный ремонт |
| Планировка cian | Кабинетная |
| Планировка avito | Кабинетная |
| Отделка помещения коммерческая | Офисная |
| Право собственности | Посредник |
| Способ связи avito | По телефону и в сообщениях |
| Тип недвижимости (Гипернн) | Помещение |
| Состояние cian | Офисная отделка |
| Ремонт коммерческая | частичный ремонт |
| Целевое назначение (Гипернн) | офисный |
| Тип дома cian | Кирпичный |
| Вариант задания цены (avito) | за всё |
| Статус готовности | В эксплуатации |
| Тип коммерческой | Офисное помещение |
| Площадь, кв.м. | 196.2 |
| Этаж | 2 |
| Этажность | 2 |
| Стоимость | 9 500 000 руб. |

Штыкова Владислава
Стоимость - 9 500 000 руб.
Цена кв.м. - 48 420 руб.
Похожие предложения
Notice (1024): Element Not Found: Elements/Realty/sold_object_modal.ctp [CORE/Cake/View/View.php, line 425]
































